
Planung und Ausführung Umbau 2021
Dieser Umbau zeigt exemplarisch, wie aus einer anfänglichen geringfügigen Absicht ein grösseres Projekt heranwuchs, das heute eine komplett neue Wohnsituation darstellt.













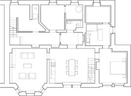
Am Anfang stand der Wunsch der Bauherrschaft, zukünftig auf Oel zur Energieerzeugung zu verzichten. Durch den Abbruch des alten Oeltanks wurde auf der Hangseite des Gartengeschosses ein zusätzlicher Raum frei, der wiederum zu verschiedenen Anpassungen, Nutzungsverschiebungen und Raumoptimierungen führte. Schliesslich entwickelte sich aus drei Zimmern eine neue, eigenständige Wohnung mit gegen 50% mehr Wohnfläche, zwei Nasszellen und einem Abstellraum, ohne dass sich am äusseren Volumen etwas verändert hätte. Gleichzeitig wurde auch die Gebäudehülle energetisch saniert mit neuem Bodenaufbau, angepasster Perimeterdämmung und neuen Fenstern.
Der Schlüssel zu dieser Wertsteigerung sind verschiedenen Nutzungsüberlagerungen, bzw. Mehrfachnutzungen derselben Fläche:
Die gesamte Wohnung inklusive Gartensitzplatz kann vermietet oder über eine interne Treppe zur oberen Wohnung dazugeschlagen werden.

Planung und Ausführung Umbau 2021
Das Gebäude stammt aus den 30er Jahren des letzten Jahrhunderts und liegt als hangseitiger Teil eines Doppelwohnhauses in gutbürgerlicher Umgebung mit stattlichen Ein- und Mehrfamilienhäusern und teilweise üppigen Gärten. Ursprünglich für eine Familie gebaut, wurde es in den 70er Jahren durch wenig subtile Eingriffe in drei Wohnungen unterteilt.













Das Grundkonzept des Umbaus ergibt sich aus der Wertschätzung der originalen Bausubstanz in Kombination mit einer zeitgemässen Aufwertung der Koch-und Esssituation im Erdgeschoss und der Klärung der inneren Raumabfolgen. Die Einrichtung moderner Bäder gehört ebenso dazu wie eine Neuorganisation des Aussenraumes.
Um diese Aenderungen möglich zu machen, werden diverse Raum- und Geschossunterteilungen rückgängig gemacht. Es erfolgt ein kompletter Abbruch aller Küchen und Nassräume. Gleichzeitig wird dem Erdgeschoss ein neuer Raum hinzugefügt, der die Küche aufnimmt und eine logische Raumabfolge von Kochen, Essen und Wohnen ermöglicht. Von aussen tritt er als holzverkleideter, schwebender Kubus in Erscheinung mit grossem zentrierten Fenster, das den Durchblick durch das Haus bis in den Garten ermöglicht. Eine neue Gartenterrasse verläuft entlang der ganzen Südfassade und vermittelt zwischen dem erhöhten Wohngeschoss und dem Aussenraum. Sie kann als gartenseitige Erweiterung des Wohn- und Esszimmers verstanden werden. Das 1. Obergeschoss erhält stirnseitig ebenfalls eine grosszügige Terrasse, welche - teilweise überdeckt - Aussicht auf den Uetliberg bietet. Die alte Stützmauer, die das Gebäude wie einen Schild vor dem ansteigenden Hang schützt, wird freigespielt und auf beide Seiten mit Granitblöcken verlängert. Diese bilden Nischen für Sitzgelegenheiten.